🏦 Get Your Mortgage or Real Estate Services Seen on Every Listing

Thousands of buyers and investors explore commercial, residential, and business listings every day on LoopingCloud.
Promote your mortgage services or real estate business directly on each listing by state, boost your visibility and connect instantly with serious prospects ready to take the next step.

Offer Your Real Estate Services Today Get started Offer Your Mortgage Services Today Get started
Published on: Monday, February 24, 2025
Updated on: Monday, February 24, 2025
About the Lister
User Profile Image
Name: Cooper Osteen
Company: SLC Commercial Real State
Office Phone: (772) 332-9544
Cell Phone: (772) 332-9544
Provide Your Service
Financing  Business  Material

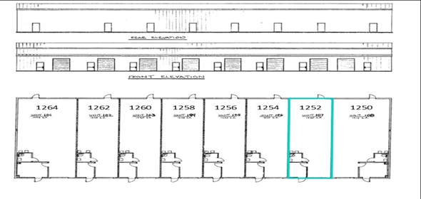
  Biltmore Commercial Center

1252 Southwest Biltmore Street Fort Pierce Florida , 34983
1252 Southwest Biltmore Street Fort Pierce Florida                                                                                             , 34983  SLC Commercial Real State
Listing ID: CL-Florida-14298 Distribution Warehouse/Industrial
Quick Glance
Listing ID: CL-Florida-14298
Status: Accepting Offers
Occupancy: 100%
Year Build: 2006
Building Size: 10,922.00 SqFt
Lot Size: N/A
No of Stories: N/A
No of Parking: N/A
Is Security Deposit Required: No
Lease Type: Gross Lease
Available B2B Options: 0
Offer to Millionaire Club: No
Attached Documents
  • Download | 1252 SW Biltmore St - PSL - Lease Flyer.pdf ( 1,887.22KB)
Listing Summary
The property is located in the central Biltmore Industrial area of Port Saint Lucie with easy access to the Turnpike & I-95.
Complete Details
Year Build: 2006
Building Size: 10,922 SqFt.
Total Lot Area: N/A
No of Stories: N/A
No of Total Units: N/A
Occupancy: 100%
Heating and Cooling: Not Specified
Roofing: Not Specified
No of Parking: N/A
Lease Details
Lease Type: Gross Lease
Monthly Rent: $1,750.00
Availability on: Monday, February 24, 2025
Rental Application Fee: $0.00
Total Cost to Move in: $0.00
Security Deposit Required?: No
Lease Terms

$1,750.00 per month (Gross)

Full Description

Property Description

Needed

Location Description

The property is located in the central Biltmore Industrial area of Port Saint Lucie with easy access to the Turnpike & I-95.

Lease Terms
$1,750.00 per month (Gross)
Additional Properties
Property Utilities
  • Handicap Access: Yes
  • Broadband: Cable
  • Gas / Propane: City of Port St. Lucie
Features
  • Ceiling Height (Ft): 18.0
  • Plumbing Description: Fully Plumbed for special use as commercial kitchen
Listing Location
Lister's other Properties
Address: TBD Koblegard Rd | Fort Pierce , Fort Pierce Florida 34951
Listing ID: CL-Florida-26050
Listing Type: Commercial
Category: Land - Leased Land
Status: Accepting Offers
Created On: 8/6/2025
Modified On: 8/6/2025
TBD Koblegard Rd | Fort Pierce , Fort Pierce Florida                                                                                              34951
Address: TBD King's Hwy | Fort PIerce , Fort Pierce Florida 34945
Listing ID: CL-Florida-26049
Listing Type: Commercial
Category: Land - Industrial
Status: Accepting Offers
Created On: 8/5/2025
Modified On: 8/6/2025
TBD King's Hwy | Fort PIerce , Fort Pierce Florida                                                                                              34945
Address: 6450 US Highway 1 , Fort Pierce Florida 34952
Listing ID: CL-Florida-25762
Listing Type: Commercial
Category: Land - Commercial
Status: Accepting Offers
Created On: 6/27/2025
Modified On: 6/27/2025
6450 US Highway 1 , Fort Pierce Florida                                                                                              34952
Address: 4555 Taylor Dairy Rd , Fort Pierce Florida 34946
Listing ID: CL-Florida-25760
Listing Type: Commercial
Category: Land - Commercial
Status: Accepting Offers
Created On: 6/27/2025
Modified On: 6/27/2025
4555 Taylor Dairy Rd , Fort Pierce Florida                                                                                              34946
Address: 700 Boston Ave , Fort Pierce Florida 34950
Listing ID: CL-Florida-25165
Listing Type: Commercial
Category: Office - Office Condo
Status: Accepting Offers
Created On: 5/13/2025
Modified On: 5/14/2025
700 Boston Ave , Fort Pierce Florida                                                                                              34950
⚠ Disclaimer

LoopingCloud is a social listing portal that connects real estate professionals, service providers, buyers, and sellers. All property information, descriptions, availability, financial details, and any offerings under financial services, business services, and material services are provided by the respective lister or service provider and are not independently verified by LoopingCloud. While believed to be accurate, the information is provided “as is” without any representations, warranties, or guarantees of any kind. LoopingCloud does not endorse, warrant, or verify the quality, accuracy, or reliability of any property details or services provided through the portal. Interested parties are encouraged to independently verify all information and consult with qualified professionals before making any decisions.

Property Currently Unavailable

This property has been temporarily inactivated by the realtor and is no longer available for viewing.

You can continue browsing other active listings from this realtor.


or explore other properties by category.