🏦 Get Your Mortgage or Real Estate Services Seen on Every Listing

Thousands of buyers and investors explore commercial, residential, and business listings every day on LoopingCloud.
Promote your mortgage services or real estate business directly on each listing by state, boost your visibility and connect instantly with serious prospects ready to take the next step.

Offer Your Real Estate Services Today Get started Offer Your Mortgage Services Today Get started
Published on: Thursday, September 19, 2024
Updated on: Thursday, September 19, 2024
About the Lister
User Profile Image
Name: Cooper Osteen
Company: SLC Commercial Real State
Office Phone: (772) 332-9544
Cell Phone: (772) 332-9544
Provide Your Service
Financing  Business  Material

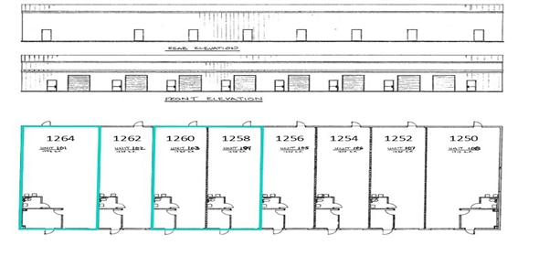
  Turnkey Food Production Facility

1258 SW Biltmore St, Fort Pierce Florida , 34983
1258 SW Biltmore St, Fort Pierce Florida                                                                                             , 34983  SLC Commercial Real State
Listing ID: CL-Florida-11980 Flex Space/Industrial

Purchase Option

Acquisition Option: Traditional Purchase
Cap Rate (%): Contact Lister
Net Operating Income: Contact Lister
Quick Glance
Listing ID: CL-Florida-11980
Status: Accepting Offers
Financing: Third Party Financing
Occupancy: N/A
Year Build: 2006
Building Size: 4,263.00 SqFt
Lot Size: N/A
No of Stories: 1
No of Parking: N/A
Offer to Millionaire Club: No
Business Available for Sale: No
Is Net Lease Investment: No
Property On Ground Lease: No
Building Status: Existing
Listing Summary
Centralized flex industrial condo units built out as turn-key food production facility.
Complete Details
Year Build: 2006
Building Size: 4,263 SqFt.
No of Stories: 1
Total Lot Area: N/A SqFt.
No of Parking: N/A
No of Total Units: 1
Property Current Status: Normal Sale
Building Status: Existing
Heating and Cooling: Not Specified
Building Class: B
Property on Ground Lease?: No
Net Lease Investment?: No
Business Price Included?: No
Roofing: Not Specified
Occupancy: 0%
Full Description
Centralized flex industrial condo units built out as turn-key food production facility. The units total 4,263 square feet of ground floor area + 1,400 SF 2nd floor offices and storage. Units contain upgraded plumbing system for compartment sinks, hand sinks, and drainage & are fully air-conditioned. Highly functional production space with tile floors + 16’ 1,000 SF walk in refrigerator and 200 SF freezer. Automatic backup generator to supply cooling in event of power outage. This is a must see for anyone in the food production business! Offering includes 3 separate condominium units with the opportunity to purchase an additional 1,717 SF standard flex warehouse / office unit.

Lending Opportunities

Interested in making an offer on this property or adding it to your portfolio? Our network of experienced lenders is ready to provide you with competitive loan options tailored to your needs. Whether you're an investor or a first-time buyer, securing financing is the key to turning this opportunity into reality. Don’t wait, reach out now to get pre-approved, explore your loan options, and take the next step with confidence!
Company Name Lender Type Contact Name Contact Number Actions
Easy Home Loans, LLC Mortgage Broker Ana M Gonzalez (786) 525-7126 Request Quote
Universe Financial Corp Mortgage Broker Melody Bejerano (305) 505-3053 Request Quote
Listing Location
Lister's other Properties
Address: TBD Koblegard Rd | Fort Pierce , Fort Pierce Florida 34951
Listing ID: CL-Florida-26050
Listing Type: Commercial
Category: Land - Leased Land
Status: Accepting Offers
Created On: 8/6/2025
Modified On: 8/6/2025
TBD Koblegard Rd | Fort Pierce , Fort Pierce Florida                                                                                              34951
Address: TBD King's Hwy | Fort PIerce , Fort Pierce Florida 34945
Listing ID: CL-Florida-26049
Listing Type: Commercial
Category: Land - Industrial
Status: Accepting Offers
Created On: 8/5/2025
Modified On: 8/6/2025
TBD King's Hwy | Fort PIerce , Fort Pierce Florida                                                                                              34945
Address: 6450 US Highway 1 , Fort Pierce Florida 34952
Listing ID: CL-Florida-25762
Listing Type: Commercial
Category: Land - Commercial
Status: Accepting Offers
Created On: 6/27/2025
Modified On: 6/27/2025
6450 US Highway 1 , Fort Pierce Florida                                                                                              34952
Address: 4555 Taylor Dairy Rd , Fort Pierce Florida 34946
Listing ID: CL-Florida-25760
Listing Type: Commercial
Category: Land - Commercial
Status: Accepting Offers
Created On: 6/27/2025
Modified On: 6/27/2025
4555 Taylor Dairy Rd , Fort Pierce Florida                                                                                              34946
Address: 700 Boston Ave , Fort Pierce Florida 34950
Listing ID: CL-Florida-25165
Listing Type: Commercial
Category: Office - Office Condo
Status: Accepting Offers
Created On: 5/13/2025
Modified On: 5/14/2025
700 Boston Ave , Fort Pierce Florida                                                                                              34950
⚠ Disclaimer

LoopingCloud is a social listing portal that connects real estate professionals, service providers, buyers, and sellers. All property information, descriptions, availability, financial details, and any offerings under financial services, business services, and material services are provided by the respective lister or service provider and are not independently verified by LoopingCloud. While believed to be accurate, the information is provided “as is” without any representations, warranties, or guarantees of any kind. LoopingCloud does not endorse, warrant, or verify the quality, accuracy, or reliability of any property details or services provided through the portal. Interested parties are encouraged to independently verify all information and consult with qualified professionals before making any decisions.

Property Currently Unavailable

This property has been temporarily inactivated by the realtor and is no longer available for viewing.

You can continue browsing other active listings from this realtor.


or explore other properties by category.