🏦 Get Your Mortgage or Real Estate Services Seen on Every Listing

Thousands of buyers and investors explore commercial, residential, and business listings every day on LoopingCloud.
Promote your mortgage services or real estate business directly on each listing by state, boost your visibility and connect instantly with serious prospects ready to take the next step.

Offer Your Real Estate Services Today Get started Offer Your Mortgage Services Today Get started
Published on: Monday, March 3, 2025
Updated on: Monday, March 3, 2025
About the Lister
User Profile Image
Name: Laura Liza Paz
Company: NAI Rio Grande Valley
Office Phone: 956.994.8900
Cell Phone: 956.227.8000
Provide Your Service
Financing  Business  Material

  Fantastic Commercial property

1801 N Raul Longoria Road # F San Juan Texas , 78589
1801 N Raul Longoria Road # F San Juan Texas                                                                                               , 78589  NAI Rio Grande Valley
Listing ID: CL-Texas-14445 Commercial/Land
Quick Glance
Listing ID: CL-Texas-14445
Status: Accepting Offers
Occupancy: N/A
Year Build: N/A
Building Size: 5,517.00 SqFt
Lot Size: 19,618.00 SqFt.
No of Stories: 1
No of Parking: 30
Is Security Deposit Required: No
Lease Type: Gross Lease
Available B2B Options: 0
Offer to Millionaire Club: No
Listing Summary
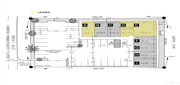
We are thrilled to announce that you can pre-lease your suite in the upcoming retail plaza located on North Raul Longoria Rd.​, San Juan.
Complete Details
Year Build: N/A
Building Size: 5,517 SqFt.
Total Lot Area: 19,618 SqFt.
No of Stories: 1
No of Total Units: 1
Occupancy: 0%
Heating and Cooling: Not Specified
Roofing: Not Specified
No of Parking: 30
Lease Details
Lease Type: Gross Lease
Monthly Rent: $1,213.00
Availability on: Monday, March 3, 2025
Rental Application Fee: $0.00
Total Cost to Move in: $0.00
Security Deposit Required?: No
Lease Terms

Full Description

We are thrilled to announce that you can pre-lease your suite in the upcoming retail plaza located on North Raul Longoria Rd.?, San Juan.? The new Retail Plaza is expected to be completed Q1 2024, and you can choose from suites ranging from 494 to 612 SF.? These suites are fully customizable and ready for you to move in.? The plaza is located on a bustling street, offering great visibility for your business needs.? This is an incredible opportunity that you don't want to miss out on.? Secure your preferred suite today!

Lease Terms
Listing Location
Lister's other Properties
Address: 1104 Jesse Street , Weslaco Texas 78596
Listing ID: CL-Texas-25172
Listing Type: Commercial
Category: Multifamily - Duplex/Triplex/Fourplex
Status: Accepting Offers
Created On: 5/14/2025
Modified On: 5/14/2025
1104 Jesse Street , Weslaco Texas                                                                                                78596
Address: 1104 Jesse Street , Weslaco Texas 78596
Listing ID: RL-Texas-25171
Listing Type: Residential
Category: Residential Type - Multifamily
Status: Accepting Offers
Created On: 5/14/2025
Modified On: 5/14/2025
1104 Jesse Street , Weslaco Texas                                                                                                78596
Address: 848 Mile 12 1/2 North Road , Donna Texas 78537
Listing ID: CL-Texas-25170
Listing Type: Commercial
Category: Land - Commercial
Status: Accepting Offers
Created On: 5/14/2025
Modified On: 5/14/2025
848 Mile 12 1/2 North Road , Donna Texas                                                                                                78537
Address: 1301 Warren Street , Pharr Texas 78577
Listing ID: CL-Texas-25169
Listing Type: Commercial
Category: Land - Commercial
Status: Accepting Offers
Created On: 5/14/2025
Modified On: 5/14/2025
1301 Warren Street , Pharr Texas                                                                                                78577
Address: 0 E Dillon Road , Donna Texas 78537
Listing ID: CL-Texas-15149
Listing Type: Commercial
Category: Land - Commercial
Status: Accepting Offers
Created On: 5/13/2025
Modified On: 5/13/2025
0 E Dillon Road , Donna Texas                                                                                                78537
⚠ Disclaimer

LoopingCloud is a social listing portal that connects real estate professionals, service providers, buyers, and sellers. All property information, descriptions, availability, financial details, and any offerings under financial services, business services, and material services are provided by the respective lister or service provider and are not independently verified by LoopingCloud. While believed to be accurate, the information is provided “as is” without any representations, warranties, or guarantees of any kind. LoopingCloud does not endorse, warrant, or verify the quality, accuracy, or reliability of any property details or services provided through the portal. Interested parties are encouraged to independently verify all information and consult with qualified professionals before making any decisions.

Property Currently Unavailable

This property has been temporarily inactivated by the realtor and is no longer available for viewing.

You can continue browsing other active listings from this realtor.


or explore other properties by category.