🏦 Get Your Mortgage or Real Estate Services Seen on Every Listing

Thousands of buyers and investors explore commercial, residential, and business listings every day on LoopingCloud.
Promote your mortgage services or real estate business directly on each listing by state, boost your visibility and connect instantly with serious prospects ready to take the next step.

Offer Your Real Estate Services Today Get started Offer Your Mortgage Services Today Get started
Published on: Tuesday, December 10, 2024
Updated on: Tuesday, December 10, 2024
About the Lister
User Profile Image
Name: Coralee Quintana
Company: Exp Realty
Office Phone: 505-639-1266 60
Cell Phone: 505-639-1266
Provide Your Service
Financing  Business  Material

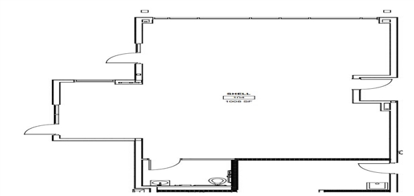
  First Generation Retail Space

2320 Central Avenue SW 101 Albuquerque New Mexico , 87104
2320 Central Avenue SW 101 Albuquerque New Mexico                                                                                          , 87104  Exp Realty
Listing ID: CL-New Mexico-13120 Office Condo/Office
Quick Glance
Listing ID: CL-New Mexico-13120
Status: Accepting Offers
Occupancy: N/A
Year Build: N/A
Building Size: N/A SqFt
Lot Size: 1,058.00 SqFt.
No of Stories: N/A
No of Parking: 3
Is Security Deposit Required: No
Lease Type: Triple Net Lease (NNN)
Available B2B Options: 0
Offer to Millionaire Club: No
Attached Documents
Listing Summary
***MLS#1072307*** First Generation Retail Space perfect for a small office, fitness or retail business.
Complete Details
Year Build: N/A
Building Size: N/A
Total Lot Area: 1,058 SqFt.
No of Stories: N/A
No of Total Units: N/A
Occupancy: 0%
Heating and Cooling: Heating and Cooling
Roofing: Not Specified
No of Parking: 3
Lease Details
Lease Type: Triple Net Lease (NNN)
Monthly Rent: $2,400.00
Availability on: Tuesday, December 10, 2024
Rental Application Fee: $0.00
Total Cost to Move in: $0.00
Security Deposit Required?: No
Lease Terms

1 Year - Lease Type: Escalation Clause

Full Description
Directions: From I-40 exit Rio Grande Blvd south. Turn right on Central Ave. Make a U-Turn on New York avenue,the property will be on the right after the Monterrey Motel.
Lease Terms
1 Year - Lease Type: Escalation Clause
Additional Properties
Property Highlights
  • Warm shell with ADA Restroom
  • Walkable Old Town Location
  • Across from Botanical Gardens and Aquarium
  • Adjacent to Patio & Indoor Dining
  • Momo Cocktail Lounge & Ponderosa Tap Room
  • 42 Apartments Onsite, 32 at El Vado
  • 42 Adjacent Motel Rooms, new Stay At Hostel
  • ABQ Rapid Transit Stop
  • 35,800 Central Ave Vehicles Per Day
  • 25,400 Rio Grande Blvd VPD
Features
  • Tenant Pays: Common Area Maintenance
  • Unit Number: 101
  • Accessibility: WheelchairAccess
  • Building Features: Private Restrooms
  • ModificationTimestamp: 2024-10-22T19:28:04.593-00:00
  • Disclosures: Ranm2100Disclosure
Listing Location
Lister's other Properties
Address: 221 Broadway Boulevard Se , Albuquerque New Mexico 87102
Listing ID: CL-New Mexico-25891
Listing Type: Commercial +Lease
Category: Industrial - Warehouse
Status: Accepting Offers
Created On: 7/14/2025
Modified On: 7/14/2025
221 Broadway Boulevard Se , Albuquerque New Mexico                                                                                           87102
Address: U.S. Rt. 66 , Bosque Farms New Mexico 87068
Listing ID: CL-New Mexico-25386
Listing Type: Commercial
Category: Land - Commercial
Status: Accepting Offers
Created On: 5/28/2025
Modified On: 5/28/2025
U.S. Rt. 66 , Bosque Farms New Mexico                                                                                           87068
Address: 6518 4th St NW Los Ranchos de Albuquerque , Albuquerque New Mexico 87107
Listing ID: CL-New Mexico-25382
Listing Type: Commercial +Lease
Category: Retail - Mixed Use
Status: Accepting Offers
Created On: 5/28/2025
Modified On: 5/28/2025
6518 4th St NW Los Ranchos de Albuquerque , Albuquerque New Mexico                                                                                           87107
Address: 5715 Central Ave NE , Albuquerque New Mexico 87108
Listing ID: CL-New Mexico-25380
Listing Type: Commercial
Category: Lodging and Hospitality - Motel
Status: Accepting Offers
Created On: 5/28/2025
Modified On: 5/28/2025
5715 Central Ave NE , Albuquerque New Mexico                                                                                           87108
Address: 2308 EUBANK Boulevard NE , Albuquerque New Mexico 87112
Listing ID: CL-New Mexico-14249
Listing Type: Commercial +Lease
Category: Retail - Mixed Use
Status: Accepting Offers
Created On: 2/21/2025
Modified On: 2/21/2025
2308 EUBANK Boulevard NE , Albuquerque New Mexico                                                                                           87112
⚠ Disclaimer

LoopingCloud is a social listing portal that connects real estate professionals, service providers, buyers, and sellers. All property information, descriptions, availability, financial details, and any offerings under financial services, business services, and material services are provided by the respective lister or service provider and are not independently verified by LoopingCloud. While believed to be accurate, the information is provided “as is” without any representations, warranties, or guarantees of any kind. LoopingCloud does not endorse, warrant, or verify the quality, accuracy, or reliability of any property details or services provided through the portal. Interested parties are encouraged to independently verify all information and consult with qualified professionals before making any decisions.

Property Currently Unavailable

This property has been temporarily inactivated by the realtor and is no longer available for viewing.

You can continue browsing other active listings from this realtor.


or explore other properties by category.