🏦 Get Your Mortgage or Real Estate Services Seen on Every Listing

Thousands of buyers and investors explore commercial, residential, and business listings every day on LoopingCloud.
Promote your mortgage services or real estate business directly on each listing by state, boost your visibility and connect instantly with serious prospects ready to take the next step.

Offer Your Real Estate Services Today Get started Offer Your Mortgage Services Today Get started
Published on: Friday, November 1, 2024
Updated on: Wednesday, April 2, 2025
About the Lister
User Profile Image
Name: Chris Maling
Company: Avison Young
Office Phone: +1 213.618.3824
Cell Phone: +1 213.364.7222
Provide Your Service
Financing  Business  Material

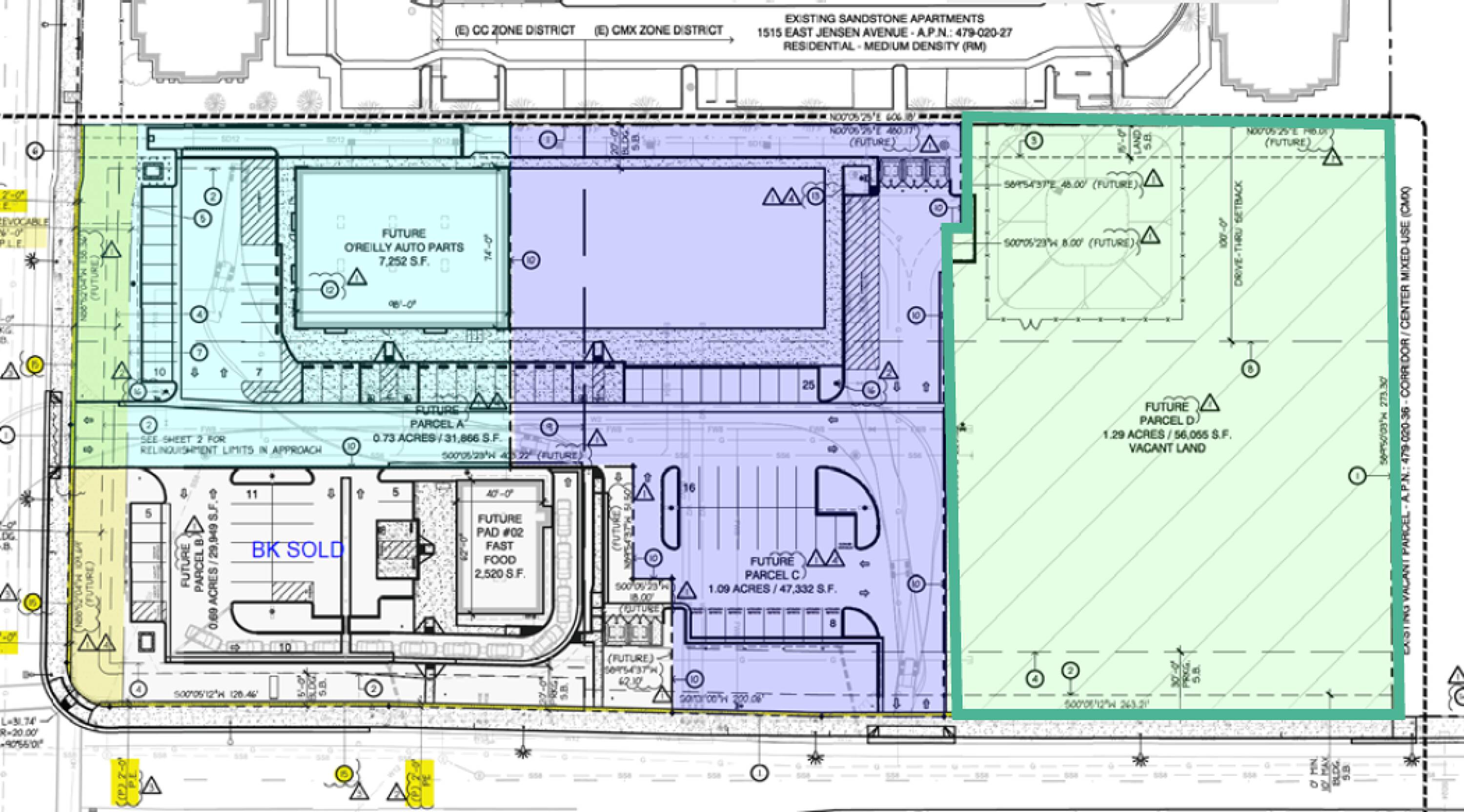
  ±1.29 Acres of Vacant Commercial Land in Fresno, CA

2580 South Elm Avenue, Parcel D Fresno California , 93706
2580 South Elm Avenue, Parcel D Fresno California                                                                                          , 93706  Avison Young
Listing ID: CL-California-12671 Commercial/Land

Purchase Option

Acquisition Option: Traditional Purchase
Cap Rate (%): Contact Lister
Net Operating Income: Contact Lister
Quick Glance
Listing ID: CL-California-12671
Status: Accepting Offers
Financing: Third Party Financing
Occupancy: N/A
Year Build: N/A
Building Size: N/A SqFt
Lot Size: 56,055.00 SqFt.
No of Stories: N/A
No of Parking: N/A
Offer to Millionaire Club: No
Business Available for Sale: No
Is Net Lease Investment: No
Property On Ground Lease: No
Building Status: Planned
Listing Summary
Avison Young is pleased to present the opportunity to acquire the vacant commercial land pad located at 2580 South Elm Avenue (Parcel D) in Fresno, California.
Complete Details
Year Build: N/A
Building Size: N/A
No of Stories: N/A
Total Lot Area: 56055 SqFt.
No of Parking: N/A
No of Total Units: N/A
Property Current Status: Normal Sale
Building Status: Planned
Heating and Cooling: Not Specified
Building Class: Not Specified
Property on Ground Lease?: No
Net Lease Investment?: No
Business Price Included?: No
Roofing: Not Specified
Occupancy: 0%
Full Description

Avison Young is pleased to present the opportunity to acquire the vacant commercial land pad located at 2580 South Elm Avenue (Parcel D) in Fresno, California. The lender-owned property is situated approximately 0.35 miles from Freeway 41 ramps and 1 mile from Freeway 99 ramps, with close proximity to other retailers including Valero and Family Dollar. The pad shares a parcel with a build-to-suit O’Reilly Auto Parts, which has a 15 year lease commencing on February 1, 2025. This is an excellent development opportunity, with the potential to benefit from synergistic nearby National Retailers.

Additional Properties
Property Other Use
  • Excellent development opportunity
Property Highlights
  • Adjoined to build-to-suit O’Reilly Auto Parts, which has a 15 year lease commencing February 1st, 2025
  • Situated approximately 0.35 miles from Freeway 41 ramps and 1 mile from Freeway 99 ramps
Features
  • Parcel D: ±1.29 Acres
Listing Location
Lister's other Properties
Address: 565 East 170th Street , South Holland Illinois 60473
Listing ID: CL-Illinois-13923
Listing Type: Commercial
Category: Industrial - Other
Status: Accepting Offers
Created On: 2/3/2025
Modified On: 2/3/2025
565 East 170th Street , South Holland Illinois                                                                                             60473
Address: 205 N Main St. , Alturas California 96101
Listing ID: CL-California-13490
Listing Type: Commercial
Category: Office - Office Building
Status: Price not Disclosed
Created On: 1/6/2025
Modified On: 1/6/2025
205 N Main St. , Alturas California                                                                                           96101
Address: 2580 South Elm Avenue, Parcel D , Fresno California 93706
Listing ID: CL-California-13486
Listing Type: Commercial
Category: Land - Commercial
Status: Accepting Offers
Created On: 1/6/2025
Modified On: 4/2/2025
2580 South Elm Avenue, Parcel D , Fresno California                                                                                           93706
Address: 525 North Azusa Avenue , Azusa California 91702
Listing ID: CL-California-13485
Listing Type: Commercial +Lease
Category: Retail - Mixed Use
Status: Accepting Offers
Created On: 1/6/2025
Modified On: 1/6/2025
525 North Azusa Avenue , Azusa California                                                                                           91702
Address: 2529 S Canal St , Carlsbad New Mexico 88220
Listing ID: CL-New Mexico-12684
Listing Type: Commercial
Category: Retail - Restaurant
Status: Accepting Offers
Created On: 11/4/2024
Modified On: 11/4/2024
2529 S Canal St , Carlsbad New Mexico                                                                                           88220
⚠ Disclaimer

LoopingCloud is a social listing portal that connects real estate professionals, service providers, buyers, and sellers. All property information, descriptions, availability, financial details, and any offerings under financial services, business services, and material services are provided by the respective lister or service provider and are not independently verified by LoopingCloud. While believed to be accurate, the information is provided “as is” without any representations, warranties, or guarantees of any kind. LoopingCloud does not endorse, warrant, or verify the quality, accuracy, or reliability of any property details or services provided through the portal. Interested parties are encouraged to independently verify all information and consult with qualified professionals before making any decisions.

Property Currently Unavailable

This property has been temporarily inactivated by the realtor and is no longer available for viewing.

You can continue browsing other active listings from this realtor.


or explore other properties by category.