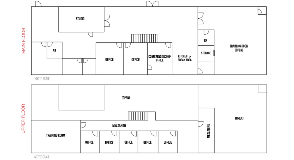
Office for Sale in Ogden Utah 84405

3789 Wall Ave, Ogden Utah, 84405

Listing ID: CL-Utah-10844 Commercial Office Condo Office
Published on: Thursday, July 4, 2024 | Updated on: Thursday, February 5, 2026

Listing Summary

Incredible office recently remodeled. Zoned for a drive-thru in Ogden

Full Description

Quick Glance
  • Listing ID: CL-Utah-10844
  • Status: Active
  • Year Build: 1968
  • Building Size: 7,200 SqFt
  • Lot Size: 20,000.00 Acre

Complete Details

  • Year Build: 1968
  • Building Size: 7,200 SqFt
  • No of Stories: 2
  • Total Lot Area: 20,000.00 Acre
  • Heating and Cooling: Not Specified
  • Building Class: Class B
  • Occupancy: 100

Pricing Details

Listing Location

Disclaimer: LoopingCloud is a social listing portal that connects real estate professionals, service providers, buyers, and sellers. All property information, descriptions, availability, financial details, and any offerings are provided by the respective lister or service provider and are not independently verified by LoopingCloud.