šŸ¦ Get Your Mortgage or Real Estate Services Seen on Every Listing

Thousands of buyers and investors explore commercial, residential, and business listings every day on LoopingCloud.
Promote your mortgage services or real estate business directly on each listing by state, boost your visibility and connect instantly with serious prospects ready to take the next step.

Offer Your Real Estate Services Today Get started Offer Your Mortgage ServicesĀ Today Get started Offer Your Material ServicesĀ Today Get started
Published on: Thursday, July 4, 2024
Updated on: Thursday, February 5, 2026
About the Lister
User Profile Image
Name: Artie Lucero
Company: Legend Commercial
Office Phone: 801 608 4909
Cell Phone: 801 608 4909
Provide Your Service
Financing  Business  Material

  Wall Ave Investment Office & Drive-Thru

3789 Wall Ave Ogden Utah , 84405
3789 Wall Ave Ogden Utah                                                                                                , 84405  Legend Commercial
Listing ID: CL-Utah-10844 Office Condo/Office

Purchase Option

Acquisition Option: Traditional Purchase
Cap Rate (%): Contact Lister
Net Operating Income: Contact Lister
Quick Glance
Listing ID: CL-Utah-10844
Status: Sold
Financing: Third Party Financing
Occupancy: 100%
Year Build: 1968
Building Size: 7,200.00 SqFt
Lot Size: 20,000.00 SqFt.
No of Stories: 2
No of Parking: N/A
Offer to Millionaire Club: No
Business Available for Sale: No
Is Net Lease Investment: No
Property On Ground Lease: No
Building Status: Existing
Attached Documents
  • Download | Wall-Ave-Investment.pdf ( 4,099.99KB)
Listing Summary
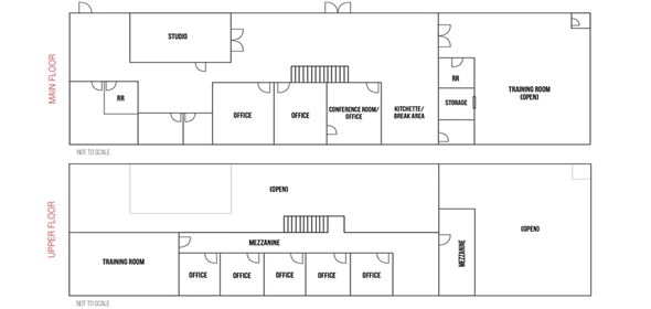
Incredible office recently remodeled. Zoned for a drive-thru in Ogden
Complete Details
Year Build: 1968
Building Size: 7,200 SqFt.
No of Stories: 2
Total Lot Area: 20000 SqFt.
No of Parking: N/A
No of Total Units: N/A
Property Current Status: Normal Sale
Building Status: Existing
Heating and Cooling: Not Specified
Building Class: B
Property on Ground Lease?: No
Net Lease Investment?: No
Business Price Included?: No
Roofing: Not Specified
Occupancy: 100%
Full Description
Additional Properties
Property Highlights
  • Office square footage: 7,200 SF
  • Pad square footage: 20,000 SF
  • Approx. 1.13 AC
  • Office recently remodeled
  • 100% Occupied
  • Zoned for a drive-thru
  • High traffic
  • Ample parking
  • Will deliver pad with sale
Listing Location
Lister's other Properties
Address: 65 E Wadsworth Park Dr , Draper Utah 84020
Listing ID: CL-Utah-27357
Listing Type: Commercial +Lease
Category: Office - Office Condo
Status: Accepting Offers
Created On: 2/5/2026
Modified On: 2/5/2026
65 E Wadsworth Park Dr , Draper Utah                                                                                                 84020
Address: 161 S Highway 89 , North Salt Lake Utah 84054
Listing ID: CL-Utah-27356
Listing Type: Commercial +Lease
Category: Retail - Mixed Use
Status: Price not Disclosed
Created On: 2/5/2026
Modified On: 2/5/2026
161 S Highway 89 , North Salt Lake Utah                                                                                                 84054
Address: 1345 E 3900 S , Salt Lake City Utah 84124
Listing ID: CL-Utah-27355
Listing Type: Commercial
Category: Office - Medical Office
Status: Accepting Offers
Created On: 2/5/2026
Modified On: 2/5/2026
1345 E 3900 S , Salt Lake City Utah                                                                                                 84124
Address: 100 South 500 West , Bountiful Utah 84010
Listing ID: CL-Utah-27354
Listing Type: Commercial +Lease
Category: Retail - Mixed Use
Status: Accepting Offers
Created On: 2/5/2026
Modified On: 2/5/2026
100 South 500 West , Bountiful Utah                                                                                                 84010
⚠ Disclaimer

LoopingCloud is a social listing portal that connects real estate professionals, service providers, buyers, and sellers. All property information, descriptions, availability, financial details, and any offerings under financial services, business services, and material services are provided by the respective lister or service provider and are not independently verified by LoopingCloud. While believed to be accurate, the information is provided ā€œas isā€ without any representations, warranties, or guarantees of any kind. LoopingCloud does not endorse, warrant, or verify the quality, accuracy, or reliability of any property details or services provided through the portal. Interested parties are encouraged to independently verify all information and consult with qualified professionals before making any decisions.

Property Currently Unavailable

This property has been temporarily inactivated by the realtor and is no longer available for viewing.

You can continue browsing other active listings from this realtor.


or explore other properties by category.