🏦 Get Your Mortgage or Real Estate Services Seen on Every Listing

Thousands of buyers and investors explore commercial, residential, and business listings every day on LoopingCloud.
Promote your mortgage services or real estate business directly on each listing by state, boost your visibility and connect instantly with serious prospects ready to take the next step.

Offer Your Real Estate Services Today Get started Offer Your Mortgage Services Today Get started
Published on: Thursday, September 5, 2024
Updated on: Thursday, September 5, 2024
About the Lister
User Profile Image
Name: Marlon Hill
Company: NAI Premier
Office Phone: 801 619 2701
Cell Phone: 801 548 3262
Provide Your Service
Financing  Business  Material

  State Street Industrial

7638 State Street Midvale Utah , 84047
7638 State Street Midvale Utah                                                                                                , 84047  NAI Premier
Listing ID: CL-Utah-11706 Warehouse/Industrial
Quick Glance
Listing ID: CL-Utah-11706
Status: Accepting Offers
Occupancy: N/A
Year Build: N/A
Building Size: 2,200.00 SqFt
Lot Size: N/A
No of Stories: N/A
No of Parking: N/A
Is Security Deposit Required: No
Lease Type: Triple Net Lease (NNN)
Available B2B Options: 0
Offer to Millionaire Club: No
Listing Summary
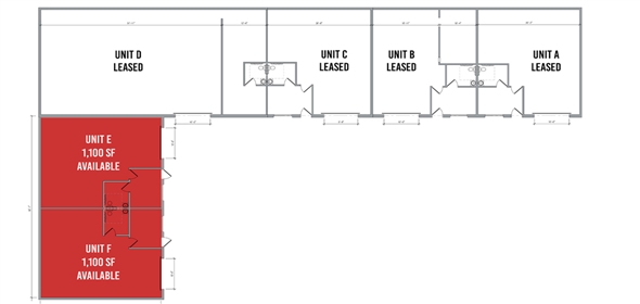
Unit E: 1,100 RSF Unit F: 1,100 RSF $18.00 PSF NNN
Complete Details
Year Build: N/A
Building Size: 2,200 SqFt.
Total Lot Area: N/A
No of Stories: N/A
No of Total Units: N/A
Occupancy: 0%
Heating and Cooling: Not Specified
Roofing: Not Specified
No of Parking: N/A
Lease Details
Lease Type: Triple Net Lease (NNN)
Monthly Rent: $18.00
Availability on: Thursday, September 5, 2024
Rental Application Fee: $0.00
Total Cost to Move in: $0.00
Security Deposit Required?: No
Lease Terms

$18.00 PSF NNN

Full Description
Lease Terms
$18.00 PSF NNN
Additional Properties
Property Highlights
  • Unit E: 1,100 RSF
  • Unit F: 1,100 RSF
  • $18.00 PSF NNN
  • 10’ GL Door in each unit
  • Each unit has a private restroom and an office.
  • Centrally located on State Street
  • Close to I-15
Features
  • Available SF: 2,200 SF
  • Min Available SF: 1,100
  • Max Available SF: 1,100
Listing Location
Lister's other Properties
Address: 1500 S. Main Street , Nephi Utah 84648
Listing ID: CL-Utah-12987
Listing Type: Commercial +Lease
Category: Retail - Restaurant
Status: Accepting Offers
Created On: 11/27/2024
Modified On: 11/27/2024
1500 S. Main Street , Nephi Utah                                                                                                 84648
Address: 3078 West 7800 South , West Jordan Utah 84088
Listing ID: CL-Utah-12577
Listing Type: Commercial +Lease
Category: Retail - Restaurant
Status: Accepting Offers
Created On: 10/25/2024
Modified On: 10/25/2024
3078 West 7800 South , West Jordan Utah                                                                                                 84088
Address: 150 East 3300 South , South Salt Lake Utah 84115
Listing ID: CL-Utah-12576
Listing Type: Commercial +Lease
Category: Retail - Restaurant
Status: Accepting Offers
Created On: 10/25/2024
Modified On: 10/25/2024
150 East 3300 South , South Salt Lake Utah                                                                                                 84115
Address: 1373 E. 10600 S. , Belmont Heights Utah 84092
Listing ID: CL-Utah-12570
Listing Type: Commercial +Lease
Category: Retail - Free Standing
Status: Accepting Offers
Created On: 10/25/2024
Modified On: 10/25/2024
1373 E. 10600 S. , Belmont Heights Utah                                                                                                 84092
Address: 7638 State Street , Midvale Utah 84047
Listing ID: CL-Utah-12569
Listing Type: Commercial
Category: Industrial - Industrial Condo
Status: Accepting Offers
Created On: 10/25/2024
Modified On: 10/25/2024
7638 State Street , Midvale Utah                                                                                                 84047
⚠ Disclaimer

LoopingCloud is a social listing portal that connects real estate professionals, service providers, buyers, and sellers. All property information, descriptions, availability, financial details, and any offerings under financial services, business services, and material services are provided by the respective lister or service provider and are not independently verified by LoopingCloud. While believed to be accurate, the information is provided “as is” without any representations, warranties, or guarantees of any kind. LoopingCloud does not endorse, warrant, or verify the quality, accuracy, or reliability of any property details or services provided through the portal. Interested parties are encouraged to independently verify all information and consult with qualified professionals before making any decisions.

Property Currently Unavailable

This property has been temporarily inactivated by the realtor and is no longer available for viewing.

You can continue browsing other active listings from this realtor.


or explore other properties by category.