🏦 Get Your Mortgage or Real Estate Services Seen on Every Listing

Thousands of buyers and investors explore commercial, residential, and business listings every day on LoopingCloud.
Promote your mortgage services or real estate business directly on each listing by state, boost your visibility and connect instantly with serious prospects ready to take the next step.

Offer Your Real Estate Services Today Get started Offer Your Mortgage Services Today Get started
Published on: Wednesday, February 19, 2025
Updated on: Tuesday, April 22, 2025
About the Lister
User Profile Image
Name: Milton Ocasio
Company: EXP Realty, LLC BT Global Group
Office Phone:  
Cell Phone: (407) 536-0041
Provide Your Service
Financing  Business  Material

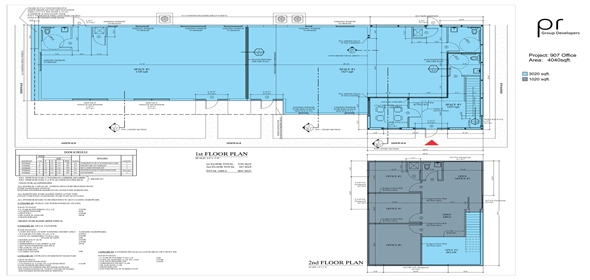
  Free Standing Medical Building

907 Person St Kissimmee Florida , 34741
907 Person St Kissimmee Florida                                                                                             , 34741  EXP Realty, LLC BT Global Group
Listing ID: CL-Florida-14203 Medical Office/Office

Purchase Option

Acquisition Option: Traditional Purchase
Cap Rate (%): Contact Lister
Net Operating Income: Contact Lister
Quick Glance
Listing ID: CL-Florida-14203
Status: Accepting Offers
Financing: Third Party Financing
Occupancy: N/A
Year Build: 2024
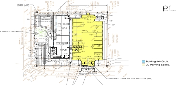
Building Size: 4,040.00 SqFt
Lot Size: N/A
No of Stories: 2
No of Parking: 20
Offer to Millionaire Club: No
Business Available for Sale: No
Is Net Lease Investment: Yes
Property On Ground Lease: No
Building Status: Existing
Listing Summary
A newly constructed, modern medical building almost finished, situated in a prime location with excellent access.
Complete Details
Year Build: 2024
Building Size: 4,040 SqFt.
No of Stories: 2
Total Lot Area: N/A SqFt.
No of Parking: 20
No of Total Units: 1
Property Current Status: Normal Sale
Building Status: Existing
Heating and Cooling: Not Specified
Building Class: A
Property on Ground Lease?: No
Net Lease Investment?: Yes
Business Price Included?: No
Roofing: Not Specified
Occupancy: 0%
Full Description

Just minutes from Osceola Hospital and nearby medical clinics, this property offers outstanding potential for equity growth and is a must-see for investors.
Sellers Finance available as well of option of leasing instead of buying.

Additional Properties
Property Highlights
  • Newly constructed in 2024, this 4,040 SF medical building offers ample parking and is conveniently located near a hospital, major roads, and avenues .
Features
  • Construction Status: Under Construction
  • APN: 21-25-29-1909-0001-0010

Lending Opportunities

Interested in making an offer on this property or adding it to your portfolio? Our network of experienced lenders is ready to provide you with competitive loan options tailored to your needs. Whether you're an investor or a first-time buyer, securing financing is the key to turning this opportunity into reality. Don’t wait, reach out now to get pre-approved, explore your loan options, and take the next step with confidence!
Company Name Lender Type Contact Name Contact Number Actions
Universe Financial Corp Mortgage Broker Melody Bejerano (305) 505-3053 Request Quote
Easy Home Loans, LLC Mortgage Broker Ana M Gonzalez (786) 525-7126 Request Quote
Listing Location
Lister's other Properties
Address: 413 N 12th St , Haines City Florida 33844
Listing ID: CL-Florida-14208
Listing Type: Commercial
Category: Retail - Free Standing
Status: Sold
Created On: 2/19/2025
Modified On: 4/22/2025
413 N 12th St , Haines City Florida                                                                                              33844
Address: 5574 S Orange Blossom Trail , Intercession City Florida 33848
Listing ID: CL-Florida-14205
Listing Type: Commercial
Category: Land - Commercial
Status: Accepting Offers
Created On: 2/19/2025
Modified On: 8/12/2025
5574 S Orange Blossom Trail , Intercession City Florida                                                                                              33848
Address: 107 Silver Palm Avenue , Melbourne Florida 32901
Listing ID: CL-Florida-14204
Listing Type: Commercial
Category: Land - Commercial
Status: Sold
Created On: 2/19/2025
Modified On: 8/12/2025
107 Silver Palm Avenue , Melbourne Florida                                                                                              32901
Address: 1156 E Donegan Ave , Kissimmee Florida 34744
Listing ID: CL-Florida-14202
Listing Type: Commercial
Category: Retail - Strip Center
Status: Accepting Offers
Created On: 2/19/2025
Modified On: 8/12/2025
1156 E Donegan Ave , Kissimmee Florida                                                                                              34744
⚠ Disclaimer

LoopingCloud is a social listing portal that connects real estate professionals, service providers, buyers, and sellers. All property information, descriptions, availability, financial details, and any offerings under financial services, business services, and material services are provided by the respective lister or service provider and are not independently verified by LoopingCloud. While believed to be accurate, the information is provided “as is” without any representations, warranties, or guarantees of any kind. LoopingCloud does not endorse, warrant, or verify the quality, accuracy, or reliability of any property details or services provided through the portal. Interested parties are encouraged to independently verify all information and consult with qualified professionals before making any decisions.

Property Currently Unavailable

This property has been temporarily inactivated by the realtor and is no longer available for viewing.

You can continue browsing other active listings from this realtor.


or explore other properties by category.