🏦 Get Your Mortgage or Real Estate Services Seen on Every Listing

Thousands of buyers and investors explore commercial, residential, and business listings every day on LoopingCloud.
Promote your mortgage services or real estate business directly on each listing by state, boost your visibility and connect instantly with serious prospects ready to take the next step.

Offer Your Real Estate Services Today Get started Offer Your Mortgage Services Today Get started
Published on: Thursday, November 20, 2025
Updated on: Thursday, November 20, 2025
About the Lister
User Profile Image
Name: Marylyn Salva
Company: REMAX ZONE
Office Phone:  
Cell Phone: (787) 380-3296
Provide Your Service
Financing  Business  Material

  Commercial Building/triple-frontage Lot

Undisclosed Hatillo Puerto Rico , 00917
Undisclosed Hatillo Puerto Rico                                                                                         , 00917  REMAX ZONE
Listing ID: CL-Puerto Rico-26862 Mixed Use/Retail

Purchase Option

Acquisition Option: Traditional Purchase
Cap Rate (%): Contact Lister
Net Operating Income: Contact Lister
Quick Glance
Listing ID: CL-Puerto Rico-26862
Status: Accepting Offers
Financing: Third Party Financing
Occupancy: N/A
Year Build: 1985
Building Size: 17,354.00 SqFt
Lot Size: 0.40 Acre
No of Stories: N/A
No of Parking: N/A
Offer to Millionaire Club: No
Business Available for Sale: No
Is Net Lease Investment: No
Property On Ground Lease: No
Building Status: Existing
Listing Summary
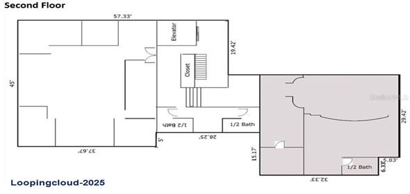
Commercial building/triple-frontage lot located at the intersection of José Martí, Padre Rufo, and Jamaica Streets (Floral Park, Hato Rey, San Juan).
Complete Details
Year Build: 1985
Building Size: 17,354
No of Stories: N/A
Total Lot Area: 0.4 Acre
No of Parking: N/A
No of Total Units: N/A
Property Current Status: Normal Sale
Building Status: Existing
Heating and Cooling: Cooling Only
Building Class: Not Specified
Property on Ground Lease?: No
Net Lease Investment?: No
Business Price Included?: No
Roofing: Not Specified
Occupancy: 0%
Full Description

Medical/Commercial Building with Triple Frontage

 

Presentamos una significativa oportunidad de inversión: un edificio comercial de triple fachada ubicado estratégicamente en la intersección de las calles José Martí, Padre Rufo y Jamaica, en el codiciado sector de Floral Park, Hato Rey, San Juan.

Este activo cuenta con un amplio solar de 1,618 m² y una impresionante construcción de 14,227 pies cuadrados, distribuidos en un sótano y tres niveles, con una robusta estructura de hormigón armado.

Anteriormente utilizado como laboratorio clínico y consultorios médicos, el edificio es ideal para usos similares o reconversión comercial. El primer nivel incluye múltiples oficinas, áreas especializadas (como Rayos X e MRI), 8 medios baños y un baño completo. El segundo nivel ofrece oficinas adicionales, cubículos y sala de conferencias, y el tercer nivel brinda acceso a la azotea. La propiedad incluye catorce estacionamientos abiertos y está clasificada con zonificación R-I, si bien su mejor y más alto uso es comercial.

Ventajas clave: Está ubicado en la Zona X (fuera de riesgo de inundación).

Tenga en cuenta: La propiedad requiere reparaciones y se vende en su estado actual.


 

Additional Properties
Property Highlights
  • Ubicación Premium y Triple Fachada: Situado estratégicamente en una esquina clave de Floral Park, Hato Rey, con frentes a tres calles.
  • Amplia Construcción: Un edificio sustancial de 14,227 pies cuadrados (con sótano incluido) sobre un solar de 1,618 m².
  • Estructura Robusta y Historial Médico: Construcción de hormigón armado, ideal para reutilizar como oficinas médicas, laboratorios o uso comercial (su uso más alto y mejor).
  • Estacionamiento Incluido: Dispone de catorce (14) estacionamientos abiertos en el predio.
  • Bajo Riesgo de Inundación: Localizado en la Zona X, fuera del área de mayor riesgo.
Features
  • Flood Zone Code: X
  • Foundation: Concrete Perimeter
Listing Location
Lister's other Properties
Address: 51 CRISTO #APT 2 , San Juan Puerto Rico 00901
Listing ID: RL-Puerto Rico-27087
Listing Type: Residential
Category: Residential Type - Condo/Townhouse
Status: Accepting Offers
Created On: 12/3/2025
Modified On: 12/3/2025
51 CRISTO #APT 2 , San Juan Puerto Rico                                                                                          00901
Address: 315 LUNA ST., MAESTRO RAFAEL CORDERO COND. #2-A , San Juan Puerto Rico 00901
Listing ID: RL-Puerto Rico-27083
Listing Type: Residential
Category: Residential Type - Condo/Townhouse
Status: Accepting Offers
Created On: 12/2/2025
Modified On: 12/2/2025
315 LUNA ST., MAESTRO RAFAEL CORDERO COND. #2-A , San Juan Puerto Rico                                                                                          00901
Address: CALLE BLANCA CHICO 181 BARRIO PUEBLO , Adjuntas Puerto Rico 00676
Listing ID: CL-Puerto Rico-27082
Listing Type: Commercial
Category: Retail - Free Standing
Status: Accepting Offers
Created On: 12/2/2025
Modified On: 12/2/2025
CALLE BLANCA CHICO 181 BARRIO PUEBLO , Adjuntas Puerto Rico                                                                                          00676
Address: PR-156 KM 48.6 SUMIDERO WARD , Adjuntas Puerto Rico 00703
Listing ID: CL-Puerto Rico-27080
Listing Type: Commercial
Category: Retail - Restaurant
Status: Accepting Offers
Created On: 12/1/2025
Modified On: 12/2/2025
PR-156 KM 48.6 SUMIDERO WARD , Adjuntas Puerto Rico                                                                                          00703
Address: CARR 686 KM 10.6 , Vega Baja Puerto Rico 00693
Listing ID: CL-Puerto Rico-27074
Listing Type: Commercial
Category: Retail - Mixed Use
Status: Accepting Offers
Created On: 12/1/2025
Modified On: 12/1/2025
CARR 686 KM 10.6 , Vega Baja Puerto Rico                                                                                          00693
⚠ Disclaimer

LoopingCloud is a social listing portal that connects real estate professionals, service providers, buyers, and sellers. All property information, descriptions, availability, financial details, and any offerings under financial services, business services, and material services are provided by the respective lister or service provider and are not independently verified by LoopingCloud. While believed to be accurate, the information is provided “as is” without any representations, warranties, or guarantees of any kind. LoopingCloud does not endorse, warrant, or verify the quality, accuracy, or reliability of any property details or services provided through the portal. Interested parties are encouraged to independently verify all information and consult with qualified professionals before making any decisions.