🏦 Get Your Mortgage or Real Estate Services Seen on Every Listing

Thousands of buyers and investors explore commercial, residential, and business listings every day on LoopingCloud.
Promote your mortgage services or real estate business directly on each listing by state, boost your visibility and connect instantly with serious prospects ready to take the next step.

Offer Your Real Estate Services Today Get started Offer Your Mortgage Services Today Get started
Published on: Tue, Jul 30, 2024 2:02 PM
Updated on: Thu, Mar 20, 2025 9:06 AM
About the Lister
User Profile Image
Name: Carlos Caicedo
Company: Lancer Caicedo Group
Office Phone: 954.642.2094
Cell Phone: (754)368-0783
Provide Your Service
Financing  Business  Material

  Spectacular Single Family Home

4743 NW 48th Ter TAMARAC, FL 33319-3631 Tamarac Florida , 33319
4743 NW 48th Ter TAMARAC, FL 33319-3631 Tamarac Florida                                                                                             , 33319  Lancer Caicedo Group
Listing ID: RL-Florida-11126 Single Family/Residential Type

Purchase Option

Acquisition Option: Traditional Purchase
Quick Glance
Listing ID: RL-Florida-11126
Status: Sold
Property Status: Normal Sale
Building Status: Existing
Year Built: 2019
Building Size: 1,642.00 Sq Ft.
Total Rooms: 6
No of Bedrooms: 3
No of Bathrooms: 2
No of Half Bathrooms: 1
No of Total Units: 6
Lot Area: 1,905.00 Sq Ft.
No of Stories: 2
No of Parking: 1
No of Garages: N/a
Pool: No
Water Front: No
Roofing: Tile
Attached Documents
No documents added yet!
Listing Summary
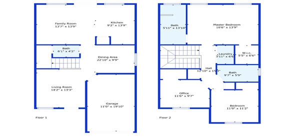
Built in 2019, HIDDEN TRAILS, this stunning 3-bedroom, 2.5-bathroom single family home with 1 car garage offers a spacious open-concept floor plan perfect for modern living.
Complete Details
Year Build: 2019
Building Size: 1,642
Total Lot Area: 1,905
No. of Stories: 2
No. of Parking: 1

Total Rooms: 0

No. of Bed Rooms: 3
No. of Bath Rooms: 2
No. of Half-Baths: 1
No. of Garages: 0
No. of Kitchen: 1
Property Current Status: Normal Sale
Building Status: Existing
Heating and Cooling: Heating and Cooling
Furnished: No
Water Front: No
Pool: No
Roofing: Tile
Detail Description

Built in 2019, HIDDEN TRAILS, this stunning 3-bedroom, 2.5-bathroom single family home with 1 car garage offers a spacious open-concept floor plan perfect for modern living. The property features HURRICANE IMPACT WINDOWS AND DOORS for added security and peace of mind. The chef's kitchen is equipped with stainless steel appliances, home shows like a model with lots of natural light. Sliding doors open to a large FENCED backyard COMPLETE with NEW ARTIFICIAL TURF, ideal for entertaining. Upstairs, 3 generously sized bedrooms all with walk-in closets and a laundry area for convenience. Enjoy a low HOA fee $52 /MONTH access to community amenities, including a pool and playground. This home combines luxury, comfort, and great location for convenience—don't miss your chance to make it yours!

Additional Properties
Property Highlights
  • Blinds/Shades, High Impact Windows, Impact Glass
Amenities
  • Community Pool, Sidewalks, Street Lights

Lending Opportunities

Interested in making an offer on this property or adding it to your portfolio? Our network of experienced lenders is ready to provide you with competitive loan options tailored to your needs. Whether you're an investor or a first-time buyer, securing financing is the key to turning this opportunity into reality. Don’t wait, reach out now to get pre-approved, explore your loan options, and take the next step with confidence!
Company Name Lender Type Contact Name Contact Number Actions
Universe Financial Corp Mortgage Broker Melody Bejerano (305) 505-3053 Request Quote
Easy Home Loans, LLC Mortgage Broker Ana M Gonzalez (786) 525-7126 Request Quote
Listing Address
Lister's other Properties
Address: 1545 NW 15th Ter , Fort Lauderdale Florida 33311
Listing ID: RL-Florida-14469
Listing Type: Residential
Category: Residential Type - Single Family
Status: Sold
Created On: 3/7/2025
Modified On: 3/20/2025
1545 NW 15th Ter , Fort Lauderdale Florida                                                                                              33311
Address: 19009 NW 23rd St , Pembroke Pines Florida 33029
Listing ID: RL-Florida-14467
Listing Type: Residential
Category: Residential Type - Single Family
Status: Accepting Offers
Created On: 3/7/2025
Modified On: 3/7/2025
19009 NW 23rd St , Pembroke Pines Florida                                                                                              33029
Address: 121 S Orange Ave # 1450N & 1470N , Orlando Florida 32801
Listing ID: CL-Florida-14444
Listing Type: Commercial
Category: Office - Other
Status: Accepting Offers
Created On: 3/3/2025
Modified On: 3/3/2025
121 S Orange Ave # 1450N & 1470N , Orlando Florida                                                                                              32801
Address: 7800 W Oakland Park Blvd # 4B13 , Sunrise Florida 33351
Listing ID: CL-Florida-14443
Listing Type: Commercial
Category: Office - Medical Office
Status: Accepting Offers
Created On: 3/3/2025
Modified On: 3/3/2025
7800 W Oakland Park Blvd # 4B13 , Sunrise Florida                                                                                              33351
Address: 6855 Abbott Ave # 504 , Miami Beach Florida 33141
Listing ID: RL-Florida-14377
Listing Type: Residential
Category: Residential Type - Condo/Townhouse
Status: Accepting Offers
Created On: 2/26/2025
Modified On: 2/26/2025
6855 Abbott Ave # 504 , Miami Beach Florida                                                                                              33141
⚠ Disclaimer

LoopingCloud is a social listing portal that connects real estate professionals, service providers, buyers, and sellers. All property information, descriptions, availability, financial details, and any offerings under financial services, business services, and material services are provided by the respective lister or service provider and are not independently verified by LoopingCloud. While believed to be accurate, the information is provided “as is” without any representations, warranties, or guarantees of any kind. LoopingCloud does not endorse, warrant, or verify the quality, accuracy, or reliability of any property details or services provided through the portal. Interested parties are encouraged to independently verify all information and consult with qualified professionals before making any decisions.